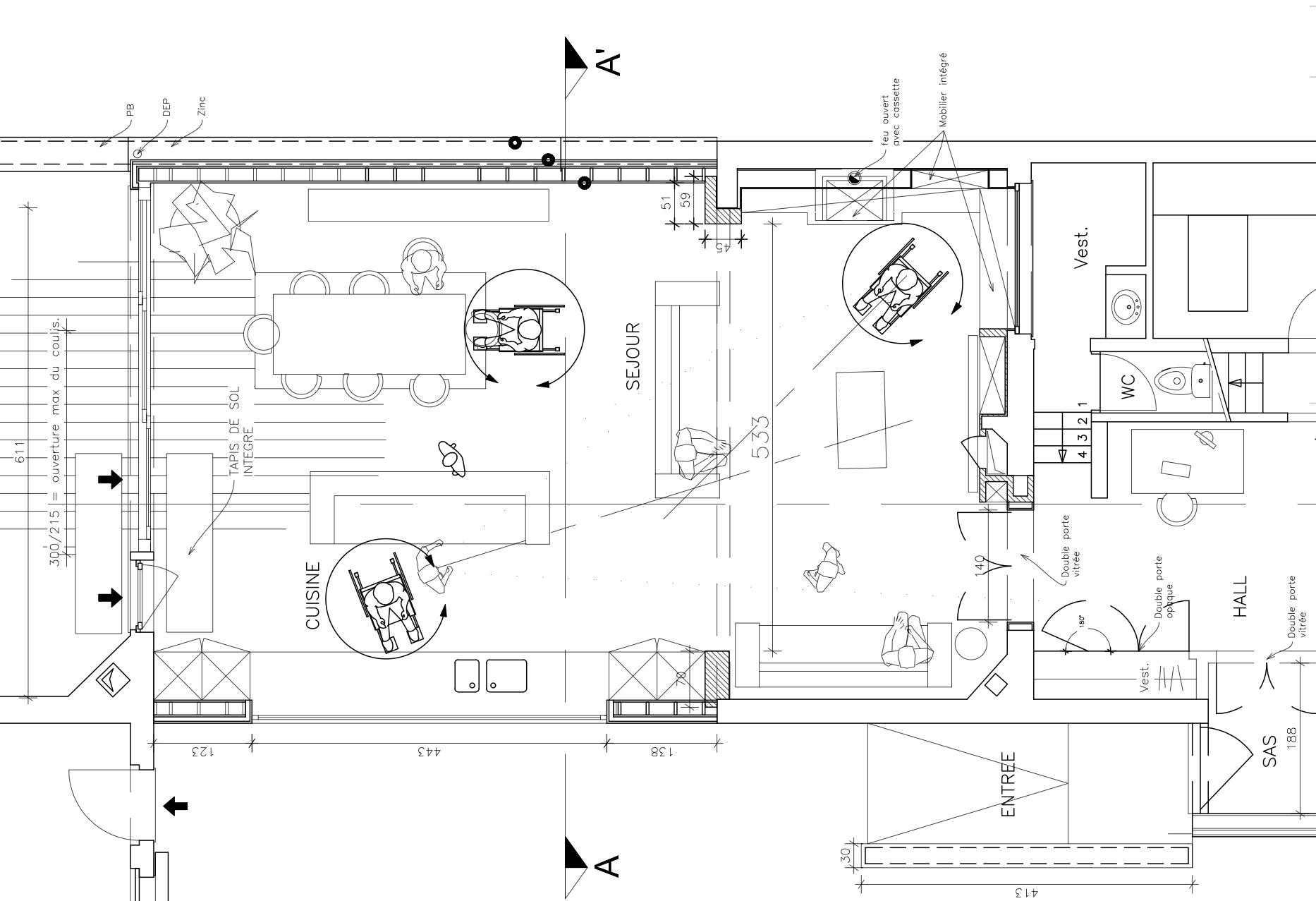
Je suis spécialisée dans l’accessibilité des personnes porteuses de handicap.
Vous voulez transformer votre habitation pour répondre à vos besoins spécifiques ?
Vous désirez accueillir chez vous vos parents, leur aménager un studio adapté à leur âge ou à leur handicap ?
Vous voulez adapter ou concevoir vos locaux commerciaux ou votre entreprise pour les rendre accessibles à tous ?
Qu’il s’agisse d’un bâtiment neuf ou d’une rénovation, j'analyse la situation et vous propose des solutions innovantes d’aménagements, d’équipements qui s’adapteront à chaque projet.
Restaurants, hôtels, musées, expositions temporaires ou pas, tout espace destiné à recevoir du public devrait accueillir facilement les personnes handicapées.
Au travers de l’asbl AMT concept, je suis également auditeur reconnu par l’asbl Access-i qui a pour mission de promouvoir l’information sur l’accessibilité des biens et services aux personnes à besoins spécifiques.








